Porte d'entrée en ALU MB-86N SI
Améliorez votre confort et réduisez vos factures de chauffages.

2
Joints EPDM
Ud = 0,83 W/(m2K)*
ISOLATION THERMIQUE
3
NOMBRE DE CHAMBRES
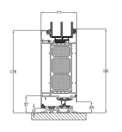
77 mm
PROFONDEUR D'ENCASTREMENT


MB-86N SI
La porte MB‑86 SI allie élégance, robustesse et isolation thermique. Conçue pour résister aux intempéries tout en offrant un confort optimal, elle s’adapte aux exigences des constructions modernes et garantit une sécurité maximale grâce à ses solutions de verrouillage avancées.
Avantages
- Crémone 3 points pour une sécurité renforcée.
- 3 paumelles à 2 lames, assurant un fonctionnement fluide et durable.
- Charnières cachées pour un panneau affleurant, offrant une finition moderne et épurée.
- Vitrage Ug = 1,1 W/(m²·K) pour une isolation thermique efficace.
- Remplissage isolant pour une performance énergétique optimale.
- Seuil à rupture de pont thermique, combinant isolation et accessibilité.
Demandez un devis

