Levant coulissant HS Monorail
Créez de grands espaces ouverts avec performance et élégance.

2
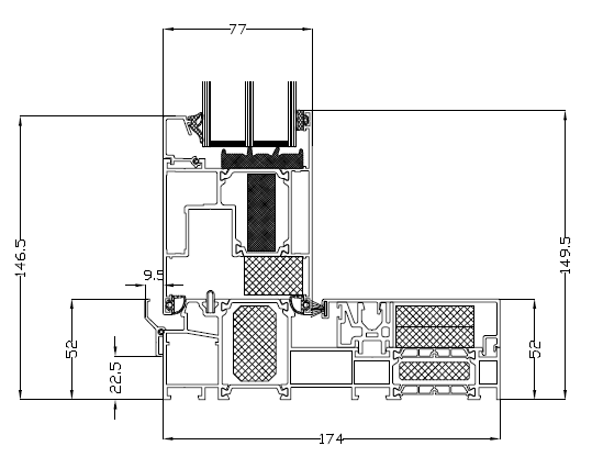
Joints EPDM
Uw = 0,75 W/(m2K)*
ISOLATION THERMIQUE
3
NOMBRE DE CHAMBRES
174 mm
PROFONDEUR D'ENCASTREMENT


Levant coulissant HS Monorail
Le système MB-77HS HI Monorail permet de réaliser des baies coulissantes levantes en aluminium, idéales pour des ouvertures panoramiques tout en conservant une excellente isolation thermique.
Avantages
- Deux joints EPDM pour garantir une étanchéité fiable.
- Profilage à 3 chambres pour un bon équilibre entre isolation et structure.
- Ferrures levantes-coulissantes G-U avec 3 points de verrouillage + micro-ventilation.
- Poignée aluminium à l’intérieur, poignée encastrée à l’extérieur pour un design épuré.
- Chariots système avec capacité de charge jusqu’à 300 kg, permettant de grands vantaux.
- Seuil alu bas de 48 mm offrant un bon passage et une finition soignée.
Demandez un devis

