Porte d'entrée en ALU MB-79N SI+
Optimisez votre confort et réduisez vos consommations énergétiques.

3
Joints EPDM
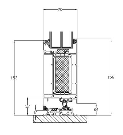
Ud = 0,85 W/(m2K)*
ISOLATION THERMIQUE
3
NOMBRE DE CHAMBRES
70 mm
PROFONDEUR D'ENCASTREMENT


MB-79N SI+
La porte MB-79N combine design moderne, sécurité renforcée et performance thermique. Grâce à sa conception soignée, elle assure une isolation optimale tout en offrant une esthétique contemporaine qui s'intègre harmonieusement à tout type d'architecture.
Avantages
- Crémone 3 points pour une sécurité renforcée.
- 3 paumelles à 2 lames, assurant un fonctionnement fluide et durable.
- Charnières cachées pour un panneau affleurant, offrant une finition moderne et épurée.
- Vitrage Ug = 1,1 W/(m²·K) pour une isolation thermique efficace.
- Remplissage isolant pour une performance énergétique optimale.
- Seuil à rupture de pont thermique, combinant isolation et accessibilité.
